Реализация объекта недвижимости приостановлена

Информация о квартире

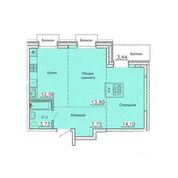
51.0 м2
Площадь
2
Комнаты
4
Этаж
16
Этажность
Развернуть

2-комнатная квартира: Улан-Удэ, Советская улица, 6/2 (51.24 м)

Продаётся 2-комн.квартира площадью 51.24 кв.м на 4 этаже 16 этажного дома (Корпус 1.2.1, секция 1) проекта ПИК Улаан Хото. Светлый просторный подъезд на уровне земли, функциональная планировка, большие окна. «Улаан Хото — это уникальный изнаковый проект, расположенный всамом сердце Улан-Удэ. ПИК создаёт его суважением ктрадициям, вдохновляясь культурой Бурятии. Мыучли все детали: отпланирования территории досоздания современной архитектуры сиспользованием традиционных элементов. ПИК создаст вУлан-Удэ будущую точку притяжения, которая подарит жителям новый стиль жизни— жилой квартал вцентре города, где вшаговой доступности есть всё для комфорта, образования икультурного досуга. Помимо 15жилых домов, впроекте появится два детских сада, школа, поликлиника имногоуровневые паркинги. Ещё натерритории квартала появится обновленный технопарк «Кванториум , который объединит молодые таланты всфере высоких технологий. Вдоль «Улаан Хото протянется прогулочный бульвар сбуддийской ступой. Онсоединит Национальный музей итеатр «Байкал , которые будут построены внациональном стиле сиспользованием архитектурных элементов ицветов, отражающих культуру Бурятии. Кроме того, ПИК отреставрирует старинные деревянные дома, которые признаны объектами культурного наследия, ивдохнет вних новую жизнь. В«Улаан Хото можно выбрать планировку под любой жизненный сценарий: есть варианты смастер-спальней, кухней-гостиной игардеробной. Изокон квартир, расположенных наверхних этажах, будет открываться панорамный вид нагород иживописный пейзаж реки. Впроекте можно выбрать квартиру спредчистовой отделкой или без отделки. Мысоздадим максимум комфорта для жителей. Водворах, свободных отмашин, появятся приватные пространства для игры, спорта испокойного отдыха. Анапервых этажах расположатся коммерческие помещения, где откроются кафе ирестораны. Здесь можно будет приятно провести время ссемьей или встретиться сдрузьями. Артикул

Читать полностью

    Реализация объекта недвижимости приостановлена

    Не нашли подходящего объявления?

    Оставьте заявку, и наши риэлторы подберут квартиру в новостройке в районе Улан-Удэ

    (0)