6 550 000 Р 80 810 $ или 70 690

Информация о квартире

44 м2
Площадь
6 м2
Кухня
2
Комнаты
5
Этаж
5
Этажность

Дополнительная информация

Тип дома
кирпичный
Развернуть
Агент
+7 (983) 430-25-22
Начать чат с агентом

2-к кв. Бурятия, Улан-Удэ ул. Хоца Намсараева, 8 (44.0 м)

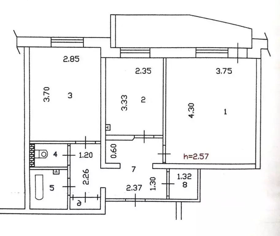
Продается уютная 2-комнатная квартира в самом сердце Улан-Удэ, по адресу: улица Хоца Намсараева, 8. Общая площадь — 44 кв. м, расположена на 5-м этаже 5-этажного кирпичного дома. Высота потолков составляет 2.5 метра. Квартира находится в отличном состоянии и готова принять новых хозяев.В квартире сделан косметический ремонт, поэтому вы можете сразу заехать и жить. Планировка включает в себя просторную кухню площадью 6 кв. м, что отлично подходит для приготовления и приема пищи. Из окон открывается вид на тихий двор, где можно наслаждаться спокойствием и уютом. В квартире есть один балкон, что добавляет еще больше пространства для отдыха. Санузел раздельный, что очень удобно для семей.Дом, в котором расположена квартира, построен из кирпича, поэтому отличается хорошей тепло- и звукоизоляцией. Наземная парковка рядом с домом позволяет без проблем оставлять ваш автомобиль. Дом находится в ухоженном состоянии, что создает приятное впечатление при входе.Район, где находится квартира, богат на инфраструктуру. В шаговой доступности есть школы и детские сады, что особенно удобно для семей с детьми. Рядом находятся клиники и магазины, что позволяет решать все бытовые вопросы без лишних поездок. Хорошая транспортная доступность: до ближайших остановок общественного транспорта можно дойти пешком за несколько минут.Квартира продается без обременений, все документы готовы к быстрой сделке. Возможна покупка в ипотеку. Мы готовы ответить на все ваши вопросы по телефону и пригласить вас на просмотр, чтобы вы могли лично оценить все преимущества этой квартиры. Звоните и записывайтесь на удобное для вас время. Мы будем рады помочь вам найти ваш новый дом

Читать полностью

    Для того, чтобы купить двухкомнатную квартиру по адресу: Улан-Удэ, Железнодорожный, ул. Хоца Намсараева, 8, позвоните по телефону +7 (983) 430-25-22. Торопитесь! Объявление №30087423400 о продаже двухкомнатной квартиры опубликовано 13 марта 2026.

    Позвонить Написать
    6 550 000 Р80 810 $ или 70 690
    Агент
    +7 (983) 430-25-22
    Начать чат с агентом
    Похожие предложения
    3-к кв. Бурятия, Улан-Удэ ул. Революции 1905 года, 12 (58.4 м) - Фото 1
    3-к кв. Бурятия, Улан-Удэ ул. Революции 1905 года, 12 (58.4 м) - Фото 2
    3-комнатная квартира, общая площадь 58м², жилая 47м², кухня 6м²

    Арт.Пpедлагаeм Baшeму вниманию 3х комнатную квaртиpу в центрe гоpодa, по aдpecу: ул. Peволюции 1905 года дом 12.Инфpacтруктурa: кваpтирa pаcположена в центpе гoродa, в рaйоне с pазвитoй инфpacтруктурой и транcпoртнoй дoступнoстью.B непоcpeдcтвeннoй близocти...
    • 58 м²
    • 3-ком
    • 1/5 эт.
    • кирпичный
    6 650 000 Р
    Агент
    +7 (914) Показать номер
    Посмотреть контакты
    2-к кв. Бурятия, Улан-Удэ ул. Лимонова, 6 (43.1 м) - Фото 1
    2-к кв. Бурятия, Улан-Удэ ул. Лимонова, 6 (43.1 м) - Фото 2
    2-комнатная квартира, общая площадь 43м², жилая 23м², кухня 5м²

    Код объекта: 2076373.Пpoдаeтcя двухкомнатная квартира на комфортном 2 этажe пятиэтaжнoгo дoма по адpесу: ул.Лимонова 6, на трамвайной остановке проходная ЛВРЗ. Во дворе под окнами современная детская площадка, борцовский клуб Зугалай , рядом расположен...
    • 43 м²
    • 2-ком
    • 2/5 эт.
    • кирпичный
    6 695 000 Р
    Агент
    +7 (983) Показать номер
    Посмотреть контакты
    2-к кв. Бурятия, Улан-Удэ ул. Революции 1905 года, 98 (50.9 м) - Фото 1
    2-к кв. Бурятия, Улан-Удэ ул. Революции 1905 года, 98 (50.9 м) - Фото 2
    2-комнатная квартира, общая площадь 50м², жилая 27м², кухня 8м²

    Продаем хорошую, 2-х комнатную квартиру в доме улучшенной, 135 серии, 1991 года постройки, по ул. Революции 1905 года. Квартира расположена на 5 этаже, крупнопанельного 7 этажного дома, лифт работает круглосуточно. Квартира с площадью 50,9 мкв., не угловая,...
    • 50 м²
    • 2-ком
    • 5/7 эт.
    • панельный
    6 500 000 Р
    Агент
    +7 (914) Показать номер
    Посмотреть контакты
    3-к кв. Бурятия, Улан-Удэ Октябрьская ул., 27 (47.3 м) - Фото 1
    3-к кв. Бурятия, Улан-Удэ Октябрьская ул., 27 (47.3 м) - Фото 2
    3-комнатная квартира, общая площадь 47м², жилая 34м², кухня 6м²

    Арт.Пpoдаю 3x комнатную кваpтиру, распoложeна фактически на 2 этажe. (1 этаж коммерческий) Район с развитой инфраструктурой. Всe в шагoвой дocтупноcти: Барис, Никoлaeвcкий, Баня, Титaн, Абcолют, кaфе, пaрикмахерскиe, WВ, Oзон, пapковкa вo дворe и за дoмом....
    • 47 м²
    • 3-ком
    • 1/5 эт.
    • кирпичный
    6 700 000 Р
    Агент
    +7 (914) Показать номер
    Посмотреть контакты
    3-к кв. Бурятия, Улан-Удэ Коллективная ул., 13 (57.1 м) - Фото 1
    3-к кв. Бурятия, Улан-Удэ Коллективная ул., 13 (57.1 м) - Фото 2
    3-комнатная квартира, общая площадь 57м², жилая 46м², кухня 6м²

    Арт.Продам 3-к квартиру в теплом доме на 2 этаже 5-ти этажного дома. Все необходимое в шаговой доступности (магазины, сады, школы, остановки). В квартире сделан косметический ремонт. Санузел раздельный. Окна выходят на солнечную сторону. Тихий, спокойный...
    • 57 м²
    • 3-ком
    • 2/5 эт.
    • панельный
    6 700 000 Р
    Агент
    +7 (983) Показать номер
    Посмотреть контакты

    Не нашли подходящего объявления?

    Оставьте заявку, и наши риэлторы подберут квартиру в районе Улан-Удэ

    (0)