Реализация объекта недвижимости приостановлена

Информация о квартире

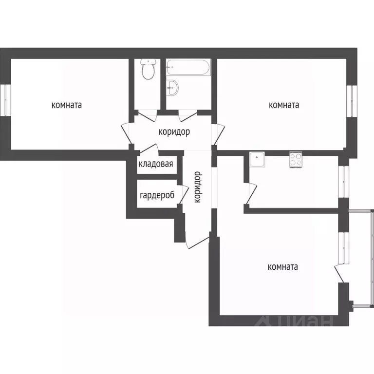
70.0 м2
Площадь
15.0 м2
Кухня
3
Комнаты
5
Этаж
5
Этажность

Дополнительная информация

Тип дома
кирпичный
Развернуть

3-к кв. Бурятия, Улан-Удэ ул. Современная, 3 (70.2 м)

Продается уютная крупногабаритная квартира с ремонтом. Квартира распашонка очень удобная планировка. Район новый 110 квартал ,вокруг свежие постройки домов. Современная детская площадка, удобные парковочные места. До школы и сада 5 минут пешком. Остановка также в шаговой доступности. В квартире стены выведены в ноль (все оштукатурено), натяжной потолок, на полу ламинат, стоят стеклопакеты, межкомнатные качественные двери, сан узел облицован красивый плиткой, сантехника и электрика вся современная. Также в квартире остается частично мебель. Рассмотрим любые варианты оплаты. Код пользователя: 113307Номер в базе: 9174758

Читать полностью

    Реализация объекта недвижимости приостановлена

    Не нашли подходящего объявления?

    Оставьте заявку, и наши риэлторы подберут квартиру в районе Улан-Удэ

    (0)