Реализация объекта недвижимости приостановлена

Информация о квартире

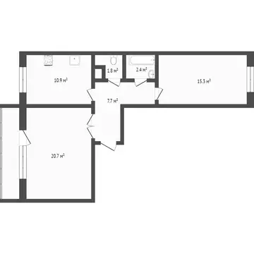
56.0 м2
Площадь
46.0 м2
Жилая
6.0 м2
Кухня
3
Комнаты
2
Этаж
5
Этажность
Развернуть

3-комнатная квартира: Улан-Удэ, Ключевская улица, 45 (56.7 м)

Продается трехкомнатная квартира на втором этаже кирпичного дома в 18-м квартале. Объект предлагается в исключительном состоянии с полным комплектом новой мебели и техники, готов к заселению без дополнительных вложений. Квартира не угловая, с узаконенной перепланировкой и качественным ремонтом, выполненным с применением материалов премиум-класса. Высокие показатели энергоэффективности обеспечивают комфортное проживание в любое время года. Окна выходят на две стороны во внутренние дворы, что гарантирует прекрасную инсоляцию и отсутствие уличного шума.Уютная кухня-гостиная объединена и полностью укомплектована встроенной техникой ведущих брендов: варочная панель, духовой шкаф, посудомоечная машина, вытяжка, холодильник, а также диван и большой обеденный стол. Напольное покрытие — практичный кафель «Керама Марацци и ламинат. В совмещенном санузле выполнен полный комплекс работ с отделкой кафелем, установлена стиральная машина и надежный водонагреватель на 80 литров. Планировка предусматривает значительные системы хранения: в коридоре оборудован вместительный шкаф-купе и гардеробная зона. Спальни обставлены функциональной мебелью, включая кровать, комод и диван со встроенными полками, одна из комнат имеет выход на застекленный балкон.В пятидесяти метрах от дома расположен капитальный гараж размером 6х4 метра на собственной земле. Объект имеет бетонный пол, подведенное электричество и оборудованный погреб, что представляет собой дополнительную инвестиционную возможность. Гараж реализуется отдельно. Ключевые преимущества объекта: идеальное состояние, полная комплектация, тихое расположение, развитая инфраструктура района и отличная транспортная доступность.Квартира полностью готова к проживанию. Один взрослый собственник. Документы готовы к продаже. Звоните. Организуем оперативный показ. Код пользователя: 186316Номер в базе: 9792814

Читать полностью

    Реализация объекта недвижимости приостановлена

    Не нашли подходящего объявления?

    Оставьте заявку, и наши риэлторы подберут квартиру в районе Улан-Удэ

    (0)