9 150 000 Р 117 600 $ или 101 100

Информация о квартире

60 м2
Площадь
10 м2
Кухня
3
Комнаты
2
Этаж
5
Этажность

Дополнительная информация

Тип дома
кирпичный
Развернуть
Агент
+7 (983) 450-74-76
Начать чат с агентом

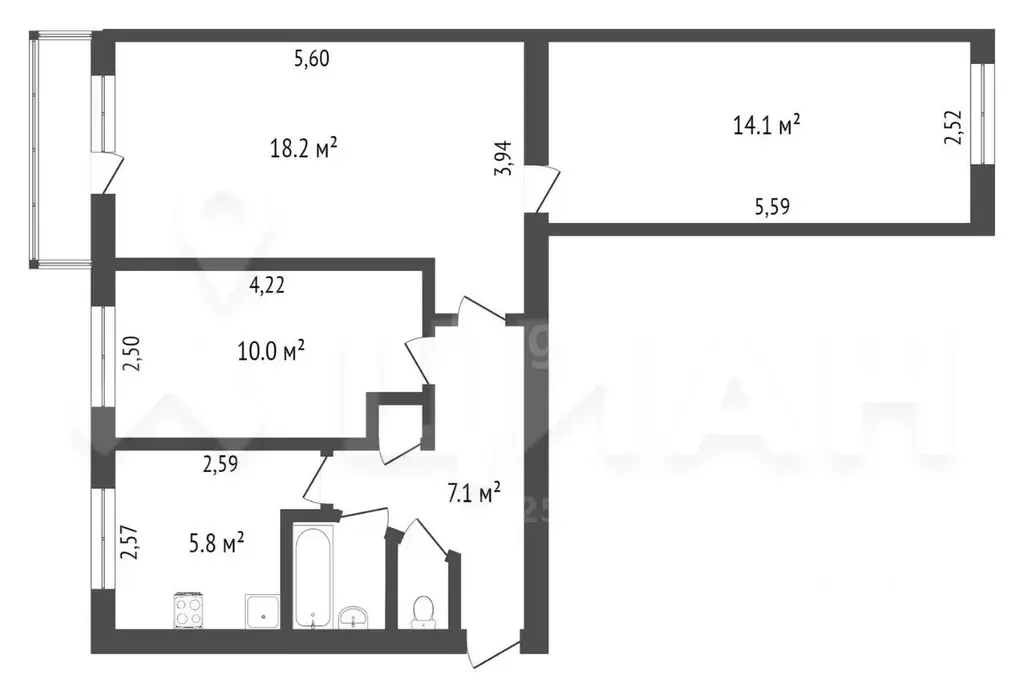
3-к кв. Бурятия, Улан-Удэ ул. Лимонова, 12 (60.4 м)

Продается трехкомнатная квартира площадью 60,4 кв. м на втором этаже пятиэтажного кирпичного дома. Квартира отличается продуманной планировкой: просторный коридор ведет в изолированные комнаты, что обеспечивает комфортное проживание для семьи. Ремонт выполнен качественно, с использованием современных материалов. Окна с пластиковыми стеклопакетами сохраняют тепло и защищают от уличного шума. Санузел раздельный, балкон застеклен и может использоваться как дополнительное пространство для хранения или отдыха. В квартире остаются кухонный гарнитур с электропечью, встроенные шкафы-купе, кондиционер, мебель в комнатах (диваны, кровать, компьютерный стол), что позволяет заселиться сразу после покупки. Район обладает развитой инфраструктурой: в шаговой доступности школы, детские сады, продуктовые магазины и аптеки. Остановка общественного транспорта находится в двух минутах ходьбы, что обеспечивает быстрый доступ в центр города — дорога на трамвае займет не более пяти минут. Двор тихий и озелененный, с детской площадкой, подходит для семей с детьми. Дом расположен в спокойном районе без интенсивного автомобильного движения, что гарантирует комфортную среду для жизни. Квартира принадлежит одному собственнику, не имеет обременений, все документы подготовлены для быстрого оформления сделки. Возможна покупка с использованием ипотечного кредитования. Объект представляет интерес для тех, кто ищет готовое жилье с хорошим ремонтом в районе с удобной транспортной развязкой и всеми необходимыми социальными объектами рядом. Код пользователя: 182453Номер в базе: 8998759

Читать полностью

    Для того, чтобы купить трехкомнатную квартиру по адресу: Улан-Удэ, Железнодорожный, ул. Лимонова, 12, позвоните по телефону +7 (983) 450-74-76. Торопитесь! Объявление №30092093902 о продаже трехкомнатной квартиры опубликовано 15 января 2026.

    Позвонить Написать
    9 150 000 Р117 600 $ или 101 100
    Агент
    +7 (983) 450-74-76
    Начать чат с агентом
    Похожие предложения
    3-к кв. Бурятия, Улан-Удэ ул. Хоца Намсараева, 4 (57.1 м) - Фото 1
    3-к кв. Бурятия, Улан-Удэ ул. Хоца Намсараева, 4 (57.1 м) - Фото 2
    3-комнатная квартира, общая площадь 57м², жилая 34м², кухня 5м²

    Код объекта: 1991670. Просторная трехкомнатная квартира-распашонка ждёт новых владельцев Общая площадь: 57,1 м. Этаж: 2-й, идеальный вариант для семей с детьми и пожилых людей. Дом: исторический центр, уютный кирпичный дом с атмосферой старинного квартала....
    • 57 м²
    • 3-ком
    • 2/5 эт.
    • кирпичный
    9 300 000 Р
    Агент
    +7 (983) Показать номер
    Посмотреть контакты
    3-к кв. Бурятия, Улан-Удэ ул. Клыпина, 10 (56.5 м) - Фото 1
    3-к кв. Бурятия, Улан-Удэ ул. Клыпина, 10 (56.5 м) - Фото 2
    3-комнатная квартира, общая площадь 56м², кухня 5м²

    Продается трехкомнатная квартира площадью 56,5 кв.м. в кирпичном доме на Шишковке. Ключевое преимущество — продуманная планировка типааспашонка с окнами на две стороны, что обеспечивает квартире отличную инсоляцию и сквозное проветривание. Изолированные...
    • 56 м²
    • 3-ком
    • 5/5 эт.
    • кирпичный
    9 200 000 Р
    Агент
    +7 (914) Показать номер
    Посмотреть контакты
    1-к кв. Бурятия, Улан-Удэ ул. Гагарина, 27к2 (46.6 м) - Фото 1
    1-к кв. Бурятия, Улан-Удэ ул. Гагарина, 27к2 (46.6 м) - Фото 2
    1-комнатная квартира, общая площадь 46м², жилая 16м², кухня 25м²

    Арт.Продается евродвушка в новом доме (2019 года постройки) Расположена в центре города с отличной транспортной развязкой, маршрутки в любую точку.Удобный третий этаж с окнами во двор, обеспечивающими тишину и комфорт.Просторная парковка во дворе. Закрытая...
    • 46 м²
    • 1-ком
    • 3/18 эт.
    • кирпичный
    9 300 000 Р
    Агент
    +7 (983) Показать номер
    Посмотреть контакты
    2-к кв. Бурятия, Улан-Удэ 140А мкр, 42 (64.13 м) - Фото 1
    2-к кв. Бурятия, Улан-Удэ 140А мкр, 42 (64.13 м) - Фото 2
    2-комнатная квартира, общая площадь 64м², жилая 45м², кухня 13м²

    Код объекта: 1793160.В продаже 2-х комнатная квартира без отделки в уютном ЖК около лесного массива. Монолитно-кирпичный дом. Около дома 2 детских площадки, открытая гостевая автостоянка. Балкон не остеклен.
    • 64 м²
    • 2-ком
    • 5/9 эт.
    9 300 000 Р
    Агент
    +7 (983) Показать номер
    Посмотреть контакты
    3-к кв. Бурятия, Улан-Удэ 140Б мкр, 1 (74.39 м) - Фото 1
    3-к кв. Бурятия, Улан-Удэ 140Б мкр, 1 (74.39 м) - Фото 2
    3-комнатная квартира, общая площадь 74м², жилая 44м², кухня 10м²

    Код объекта: 1907126.Уникальное предложение в Улан-Удэ: просторная трёхкомнатная квартира в современном доме, готовая стать вашим уютным гнёздышком Продаётся трёхкомнатная квартира площадью 74,39 кв. м на 16 этаже нового кирпично-монолитного дома. Квартира...
    • 74 м²
    • 3-ком
    • 16/17 эт.
    9 300 000 Р
    Агент
    +7 (983) Показать номер
    Посмотреть контакты

    Не нашли подходящего объявления?

    Оставьте заявку, и наши риэлторы подберут квартиру в районе Улан-Удэ

    (0)