Реализация объекта недвижимости приостановлена

Информация о квартире

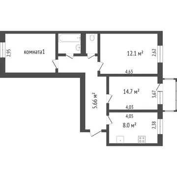
68.0 м2
Площадь
50.0 м2
Жилая
13.0 м2
Кухня
2
Комнаты
3
Этаж
5
Этажность
Развернуть

2-комнатная квартира: Улан-Удэ, проспект Строителей, 78 (68 м)

Продается просторная двухкомнатная квартира в тихом и развитом районе города. Объект отличается рациональной планировкой: изолированные комнаты расположены по разные стороны от прихожей, что обеспечивает максимальное уединение и комфорт. Окна выходят на две стороны — на спокойный двор и на улицу, наполняя пространство обилием естественного света. Кухня значительной площади является функциональным центром квартиры, позволяя с удобством разместить всю необходимую технику и обеденную группу. Дополнительным преимуществом является наличие отдельной гардеробной комнаты, что решает вопрос хранения вещей и освобождает жилое пространство.Квартира находится в отличном состоянии, готова к заселению и не имеет обременений, что позволяет провести сделку в сжатые сроки. Микрорайон обладает развитой социальной и транспортной инфраструктурой. В пешей доступности расположены детский сад «Калинка , престижная школа №49, центры раннего развития, торговый комплекс КСК, магазины повседневного спроса и парк «Юбилейный для прогулок и активного отдыха. Выгодное расположение обеспечивает быстрый выезд на основные магистрали города. Это предложение представляет собой оптимальное сочетание качественного жилья, продуманной планировки и выгодного расположения в спокойном районе с полным набором необходимой инфраструктуры. Код пользователя: 187947Номер в базе: 9789003

Читать полностью

    Реализация объекта недвижимости приостановлена

    Не нашли подходящего объявления?

    Оставьте заявку, и наши риэлторы подберут квартиру в районе Улан-Удэ

    (0)