Россия, Республика Бурятия, Улан-Удэ, улица Алдара Цыденжапова, 1

Реализация объекта недвижимости приостановлена

Информация о квартире

80.0 м2
Площадь
46.0 м2
Жилая
30.0 м2
Кухня
2
Комнаты
15
Этаж
16
Этажность
Развернуть

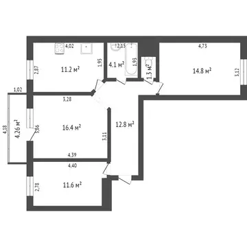
2-комнатная квартира: Улан-Удэ, улица Алдара Цыденжапова, 1 (80.6 м)

Продается просторная квартира. Продается просторная квартира на стадии ремонта, площадью 80 кв. м на 15 этаже в современном доме, сданном в ноябре 2024 года. Застройщик СМИТ. Планировка включает три комнаты, две из которых являются изолированными спальнями, совмещенную гостиную с кухней, два санузла, а также большую прихожую с гардеробной зоной. В квартире два полноразмерных балкона, значительно увеличивающие полезное пространство и инсоляцию. В подъезде работают два пассажирских лифта, что обеспечивает комфортное ежедневное пользование. Квартира расположена в новом, активно развивающемся микрорайоне с формирующейся современной инфраструктурой. Это оптимальное предложение для тех, кто ищет готовое жилье в новостройке с качественной отделкой, без необходимости вложения средств и времени в ремонтные работы. Пишите, звоните, организуем оперативный показ. Код пользователя: 192557Номер в базе:

Читать полностью

    Реализация объекта недвижимости приостановлена

    Не нашли подходящего объявления?

    Оставьте заявку, и наши риэлторы подберут квартиру в районе Улан-Удэ

    (0)