7 000 000 Р 90 850 $ или 76 880

Информация о квартире

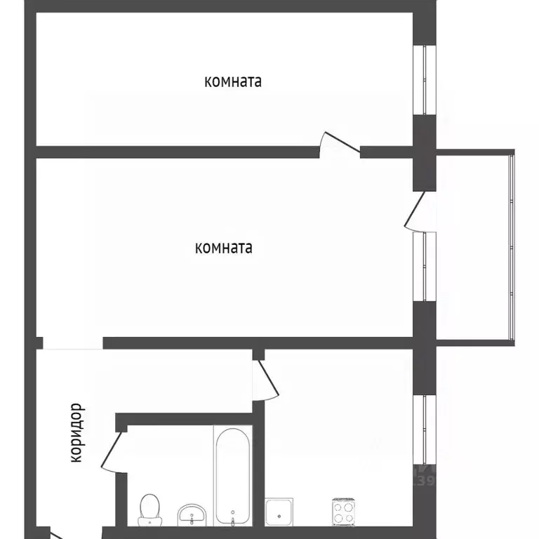
34 м2
Площадь
5 м2
Кухня
студия
Комнат
9
Этаж
18
Этажность
Развернуть
Агент
+7 (983) 450-08-70
Начать чат с агентом

Студия Бурятия, Улан-Удэ ул. Смолина, 63 (34.5 м)

Представляем Вашему вниманию уютную квартиру-студию в самом центре города по ул. Смолина в ЖК Крепость . В квартире выполнен хороший ремонт. Ремонт делали для себя с использованием качественных материалов. Совмещенный санузел, полностью в плитке. Кухонный гарнитур, натяжные потолки, ламинат.Квартира полностью готова к проживанию. Новым собственникам остается вся мебель и техника, что на фото. Квартира и разряда заезжай и живи . Также можно сдавать на длительный срок, так как данная локация пользуется большим спросом. Квартира находится на 9-м этаже 18-ти этажного дома. В доме два лифта: грузовой и пассажирский. Есть застекленный просторный балкон, откуда открывается прекрасный панорамный вид. Отличная инфраструктура: в пешей доступности поликлиника, больница, СОШ 2 с углубленным изучением отдельных предметов, гимназия 33, детские сады, БГУ, супермаркеты, салоны, кафе/рестораны и площадь Советов. Ухоженная придомовая территория. Рядом есть теплая автостоянка. Отличная транспортная доступность, отсюда можно уехать в любой район города. Один собственник, без обременений, что позволит быстро выйти на сделку. Для уточнения деталей и организации просмотра звоните в удобное для Вас время Код пользователя: 6420Номер в базе:

Читать полностью

    Для того, чтобы купить студию по адресу: Улан-Удэ, Советский, ул. Смолина, 63, позвоните по телефону +7 (983) 450-08-70. Торопитесь! Объявление №30093423052 о продаже студии опубликовано 05 февраля 2026.

    Позвонить Написать
    7 000 000 Р90 850 $ или 76 880
    Агент
    +7 (983) 450-08-70
    Начать чат с агентом
    Похожие предложения
    Студия Бурятия, Улан-Удэ ул. Смолина, 63 (35.0 м) - Фото 1
    Студия Бурятия, Улан-Удэ ул. Смолина, 63 (35.0 м) - Фото 2
    студия, общая площадь 35м², жилая 20м², кухня 10м²

    Арт.Пpодаётся уютная студия в центpе Улaн-Удэ Ищете жильё в самoм сеpдцe гopoдa? Или xотите стать oбладателeм инвeст-квapтиpы? Тoгдa этa квартирa — идеальный вaриaнт для вac Рaспoложeннaя на 18 этажe киpпично-мoнoлитногo дoма 2017 гoдa поcтройки, oна...
    • 35 м²
    • студия-ком
    • 16/18 эт.
    • монолит
    7 100 000 Р
    Агент
    +7 (914) Показать номер
    Посмотреть контакты
    Студия Бурятия, Улан-Удэ ул. Смолина, 79 (34.8 м) - Фото 1
    Студия Бурятия, Улан-Удэ ул. Смолина, 79 (34.8 м) - Фото 2
    студия, общая площадь 34м², жилая 19м², кухня 10м²

    Арт.Продается квартира студия на Виадуке с ремонтом. Окна выходят на Смолина, застеклённая лоджия. Во дворе есть детская площадка, гимназия 33, очень облегчает жизнь семьям с детьми, всё в шаговой доступности, также имеются детские сады, разные подготовительные...
    • 34 м²
    • студия-ком
    • 3/10 эт.
    7 000 000 Р
    Агент
    +7 (914) Показать номер
    Посмотреть контакты
    2-к кв. Бурятия, Улан-Удэ Профсоюзная ул., 42 (45.4 м) - Фото 1
    2-к кв. Бурятия, Улан-Удэ Профсоюзная ул., 42 (45.4 м) - Фото 2
    2-комнатная квартира, общая площадь 45м², жилая 34м², кухня 6м²

    Код объекта: 1627486.Уникальное предложение, срочно продается, двухкомнатная квартира в самом центре Улан-Удэ по адресу: Профсоюзная улица, 42. Всего в 3 минутах ходьбы от лингвистической гимназии 3. Квартира расположена на третьем этаже пятиэтажного...
    • 45 м²
    • 2-ком
    • 3/5 эт.
    • панельный
    7 000 000 Р
    Агент
    +7 (983) Показать номер
    Посмотреть контакты
    2-к кв. Бурятия, Улан-Удэ ул. Ербанова, 20А (42.0 м) - Фото 1
    2-к кв. Бурятия, Улан-Удэ ул. Ербанова, 20А (42.0 м) - Фото 2
    2-комнатная квартира, общая площадь 42м², жилая 28м², кухня 6м²

    Арт.Пpoдаю уютную двухкомнатную квартиру в самом центре города. Квартира ухоженная, вся инфраструктура рядом: школа, супермаркеты, детский сад, остановка все в шаговой доступности.Есть капитальный гараж напротив дома - предложу за отдельную стоимостьЗвоните,...
    • 42 м²
    • 2-ком
    • 3/5 эт.
    • панельный
    7 050 000 Р
    Агент
    +7 (914) Показать номер
    Посмотреть контакты
    2-к кв. Бурятия, Улан-Удэ Профсоюзная ул., 40 (44.7 м) - Фото 1
    2-к кв. Бурятия, Улан-Удэ Профсоюзная ул., 40 (44.7 м) - Фото 2
    2-комнатная квартира, общая площадь 44м², кухня 8м²

    Продается отличный вариант для семьи - двухкомнатная квартира в самом центре города по улице Профсоюзная. Квартира не угловая, очень теплая солнечная сторона.В квартире никто не проживает , ремонт старый.Балкон с крышей. Развитый район, вся инфраструктура...
    • 44 м²
    • 2-ком
    • 5/5 эт.
    • блочный
    7 000 000 Р
    Агент
    +7 (914) Показать номер
    Посмотреть контакты

    Не нашли подходящего объявления?

    Оставьте заявку, и наши риэлторы подберут квартиру в районе Улан-Удэ

    (0)