Реализация объекта недвижимости приостановлена

Информация о помещении и здании

1
Этаж
5
Этажность
Развернуть

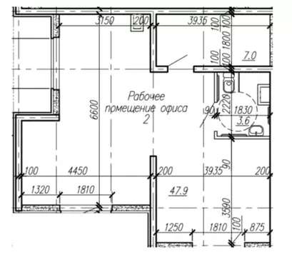
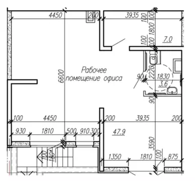
Офис в Бурятия, Улан-Удэ ул. Терешковой, 38 (53 м)

Продается нежилое помещение в районе Саян, находится массажный салонРайон с очень развитой инфраструктурой, свежий дом, общая площадь 53,1 кв.м. Достаточно проходное место В помещении выполнен косметический ремонт, установлены водосчетчики, пожарная и охранная сигнализация, имеется место для парковки авто, в шаговой доступности остановка общественного транспорта, трамвайная линия. Пользуйтесь благоприятным временем для приобретения коммерческой недвижимости для вложения инвестиций. Вкладывайте свои средства в надежный и стабильный бизнес. Звоните прямо сейчас Отвечу на интересующие вопросы Код пользователя: 63315Номер в базе: 6975320

Читать полностью

    Реализация объекта недвижимости приостановлена

    Не нашли подходящего объявления?

    Оставьте заявку, и наши риэлторы подберут офис в районе Улан-Удэ

    (0)